Messanweisungen MONUMO Einseitiges Rollo-Insektenschutzgitter
Die langlebige und störungsfreie Funktion dieses Produkts hängt nicht nur von der hohen Fertigungsqualität, sondern auch von der korrekten Anpassung und Installation ab. Um sicherzustellen, dass das Insektenschutzgitter perfekt passt, muss der ausgewählte Bereich genau und sorgfältig vermessen werden.
Es ist unbedingt erforderlich, die untenstehenden Abbildungen genau zu beachten.
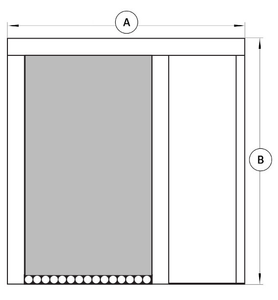
Installation innerhalb der Nische

- A - BREITE Dies ist die Breite der äußeren Türnische.
- B - HÖHE Dies ist die Höhe der äußeren Türnische.
Wenn die Maße der Nische an verschiedenen Punkten variieren, sollte das kleinste Maß verwendet werden, um eine einfache Installation zu gewährleisten.
Das MONUMO Insektenschutzgitter kann für nach innen öffnende Türen verwendet werden.
Die Maße A und B entsprechen den Endmaßen des Produkts.
Installation außerhalb der Nische

- A - BREITE Dies ist die Breite der äußeren Türnische.
- B - HÖHE Dies ist die Höhe der äußeren Türnische.
Wir empfehlen, dass das Insektenschutzgitter 50 bis 228 mm breiter (weitere Details finden Sie im Hilfsbild unter der Rubrik Insektenschutzgitter-Varianten) und 50 mm höher als die Nische ist, um eine einfache Installation zu gewährleisten und zu verhindern, dass das bewegliche Profil beim Zurückziehen des Netzes Platz im Durchgang einnimmt.
Das MONUMO Insektenschutzgitter kann für nach innen öffnende Türen verwendet werden.
Die Maße A und B entsprechen den Endmaßen des Produkts.
Varianten

MONUMO Einseitiges Insektenschutzgitter


MONUMO Doppelseitiges Insektenschutzgitter

*1P - MONUMO einseitig bedient von rechts; 1L - MONUMO einseitig bedient von links
Abmessungen anderer Komponenten

Seitenprofil mit Magnet

Seitenprofil mit Clips

Oberprofil mit Dichtungen

PVC Unterprofil

PVC Unterprofil 7° geneigt
*Alle Maße sind in Millimetern angegeben.